Right now you are surfing a limited version of umu.se. What does this mean?

The Servant’s Tale – Vertical Residency: Creating a Live-with Accommodation for Your Modern domestic worker.

Master’s Degree Project 2024

The modern domestic workers wear a striking uniform in bold colours and large printed company name. However, the same bold colour and gear out in the city on the modern domestic worker is in fact not seen. This is an architectural active and inactive participation in the creation of an invisible food courier. You are the one looking away, but the blame is on design. This is an architectural urgency which this architectural master thesis seeks to address.

The gig-economy is through its lack of spatial construct forming a norm in the making of an invisible domestic worker on all levels of their profession. The gig-companies does not hire their employees and they are actively discouraged from interacting with the households by leaving food silently outside the residential door. The spatial infrastructure and identity of a domestic worker is zero: lacking a personnel building that provide an identity and human needs for: resting, microwaving food, eating microwaved food, drinking cold water, brewing coffee, storing clothes, changing clothes, charging batteries, falling in love, laughing, relieving oneself, discussing, gossiping, daydreaming, cleaning gear, repairing gear, being reprimanded, drying up, warming up, passing the time, getting a promotion, writing e-mails, receiving motivation, ignoring feedback, etc.

This project provides an architectural prototype that aims to make a statement by making a visible domestic worker through providing a fundamental vertical spatial identity in the city. The prototype is tested on site in Umeå where the design spatialises a bold statement of a high-rise multi-purpose dwelling. This is a radical domesticity, where traditional hierarchies are challenged and ignored. The program is a mix of an open office built for a food courier as well as family apartments to challenge the relation of household and domestic workers and their bicycles.

As it stands now. The food courier is working a job that they can’t afford to live on, but at the same time can’t afford to say no to. As an architect, the urgency starts with making visible of the invisible domestic worker through architecture sensitive to those inside and outside.

Jonathan Andersson

Architecture Programme, Studio 11.
Illustration by student Image:Jonathan Andersson

Floorplan sketch of ‘vertical residency’.

Illustration by student Image:Jonathan Andersson

Domestic workers body with measurement (left) and experiment of domestic workers body in space (right)

illustration by student

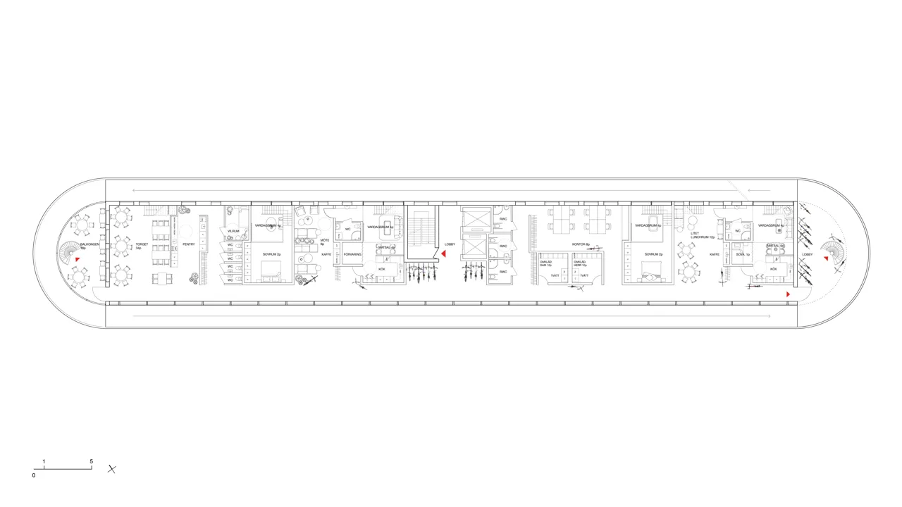
Floorplan of ‘vertical residency’.

Illustration by student Image:Jonathan Andersson

Floorplan of private dwelling room in ‘vertical residency’ and legend of layout of the building program.

Illustration by student Image:Jonathan Andersson

West elevation of ‘vertical residency’ on site in Umeå.

Illustration by student Image:Jonathan Andersson

Axonometric of ‘vertical residency’ on site in Umeå with surrounding buildings.