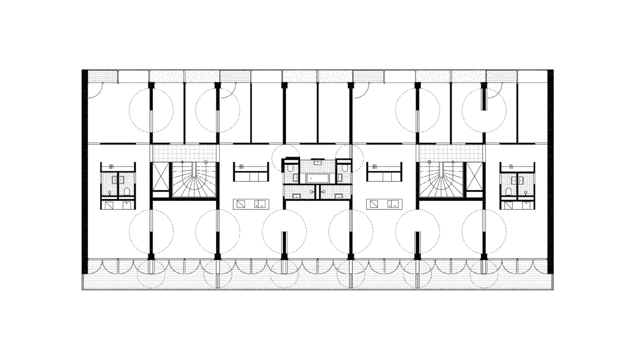
“Rotating walls can be opened or closed and create either an expansion of the unit, or a room of one's own isolated from the dwelling. What space do you need?." A dwelling type from A room of one ́s own: Make room for your inner needs. Anton Magnusson, MA thesis project, 2023.
Image:Anton MagnussonRADICAL DOMESTICITIES Swedish Standards, Studio 11 22/23
Domesticity is a concept that goes hand in hand with a clear notion of the home: a private, affective, and unwaged domain for the development of ‘family life’. However, this notion is only a fiction. If we take a closer look at the history of domestic space, we will soon reveal a heterogeneous collection of spatial, material, and political statements nested in highly specific socioeconomic circumstances. The Greek oikos, the Roman domus, the minimum dwelling, the family apartment… the history of domestic space is full of attempts to domesticate a human group in the most efficient way. Behind each of these seemingly natural domestic types lies a radical domesticity, that is, an architectural experiment on life, love, and labor; a trying out of a new way of administering life rooted in a specific political vision.
Project
Studio 11 investigates the architecture of domestic space through projects that challenge, support, or reframe the status quo of Swedish housing standards. The goal is to trace and manipulate the spatial, tectonic, and political mechanisms through which the architectural standards embedded in Swedish domestic realms mediate between national forces and individual bodies. During the autumn semester, students unveil the roots, projects, and fictions that have led to the present Swedish home. The most important questions are: What prompted the introduction of domestic standards? What economic, technical, and political regimes shaped them? What is their spatial and material configuration? What gaps do they leave? In short: What radical domesticity do Swedish standards produce, and who and what is dismissed by them? During the spring semester, students define their own set of standards to design an incisive radical domesticity.
Method
During the autumn semester, Studio 11 frames three Architectural Experiments to conduct a projective investigation on the architecture of Swedish domestic space. This phase of analysis is conducted at three different scales –domestic room, dwelling unit, and residential cluster– each of them related to a research question that the student is keen to investigate. During the spring semester, the students develop a fully designed architectural proposal on domestic space targeting a selected Swedish territory. Studio teachers stage three additional Architectural Experiments around the lenses of territory, theory, and tectonics. These lenses are utilized by the students to gradually reveal the proposed radical domesticity at the highest level of resolution and deepest level of knowledge.
Studio teachers: Daniel Movilla Vega (Studio coordinator), Mette Harder Guest teachers: Lluís J. Liñán, Esperanza Campaña
Teaching assistants: Anneli Zetterström, Linnea Johansson
Latest update: 2024-09-02